Josep Lluís Mateo has recently completed the remodelling of El Ninot market in Barcelona, a key market in the city’s food distribution network for its well communicated central location.
The Ninot Market in Barcelona, first opened in 1894, has been involved since 2009 in a process of complete renovation, carried out by Josep Lluis Mateo. The intervention of the architect focuses on four key points:
 
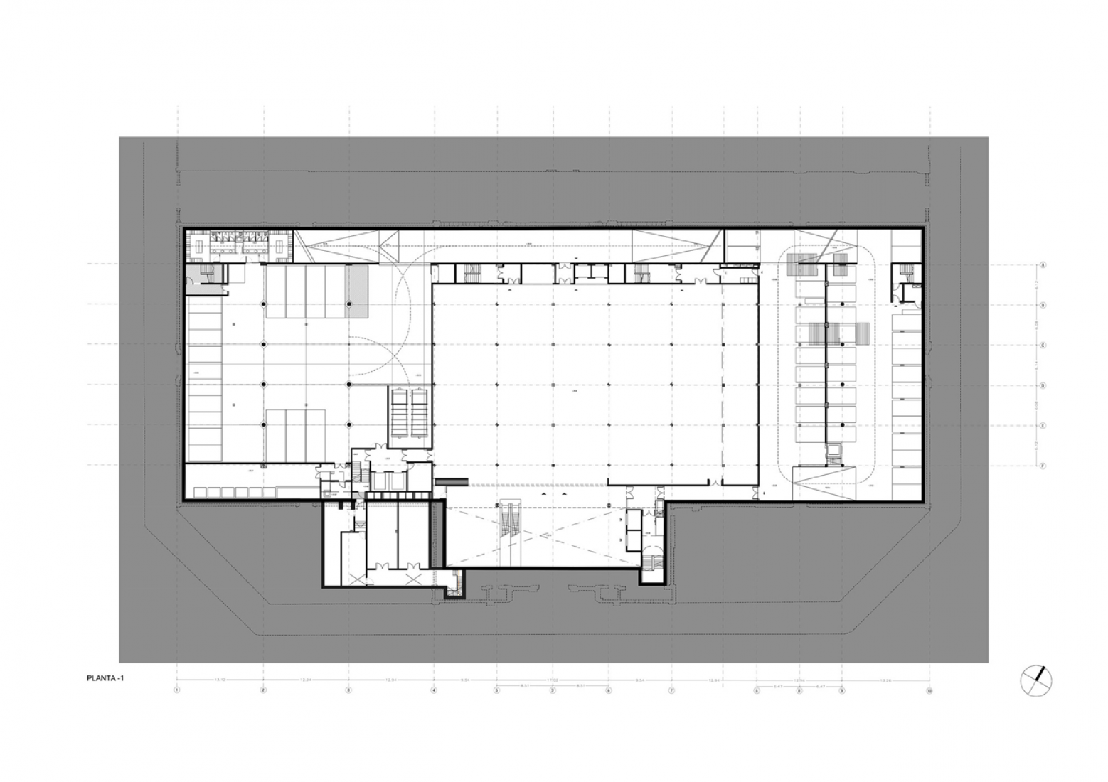
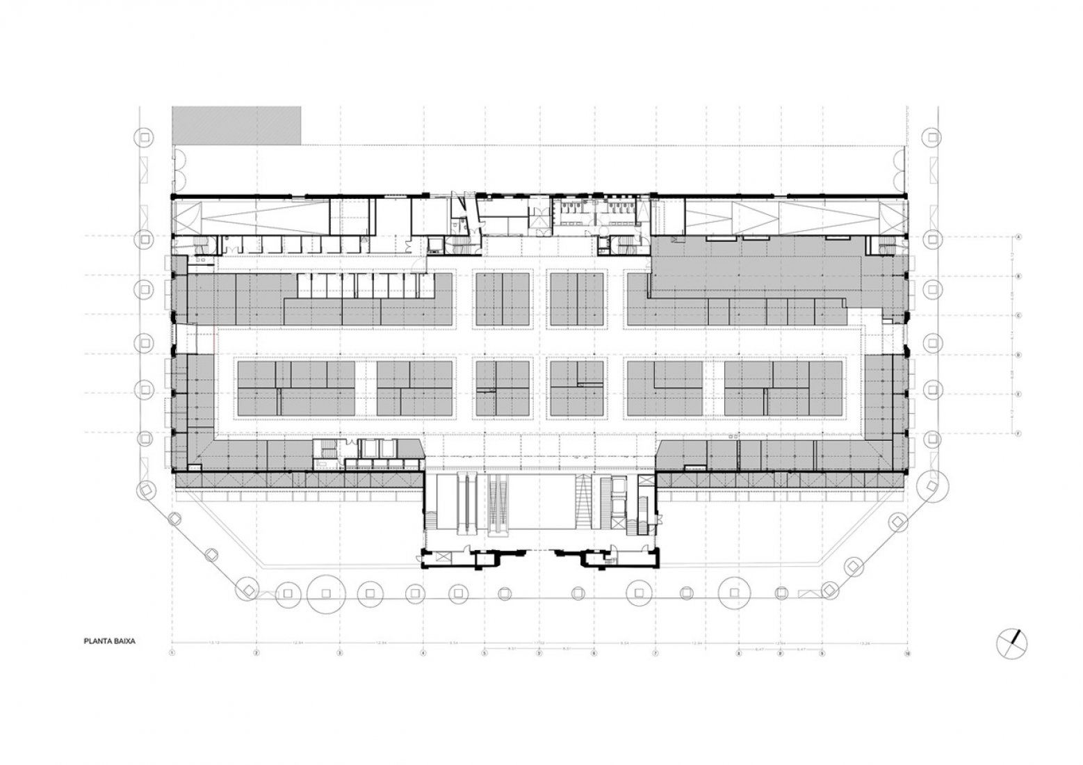
Maintaining the existing structure.- One of Mateo’s first decisions in this process was to maintain the market’s characteristic metal structure comprising three volumes, the central taller than the ones either side, to encourage ventilation and the entry of daylight. 

Improving access points.- The entrances have been reorganized, adapting the floor to the differing levels in order to eliminate the existing unevenness, and bringing together the access points to a unified space in the main foyer. The foyer offers users an overview of the market and access to the lower floor.

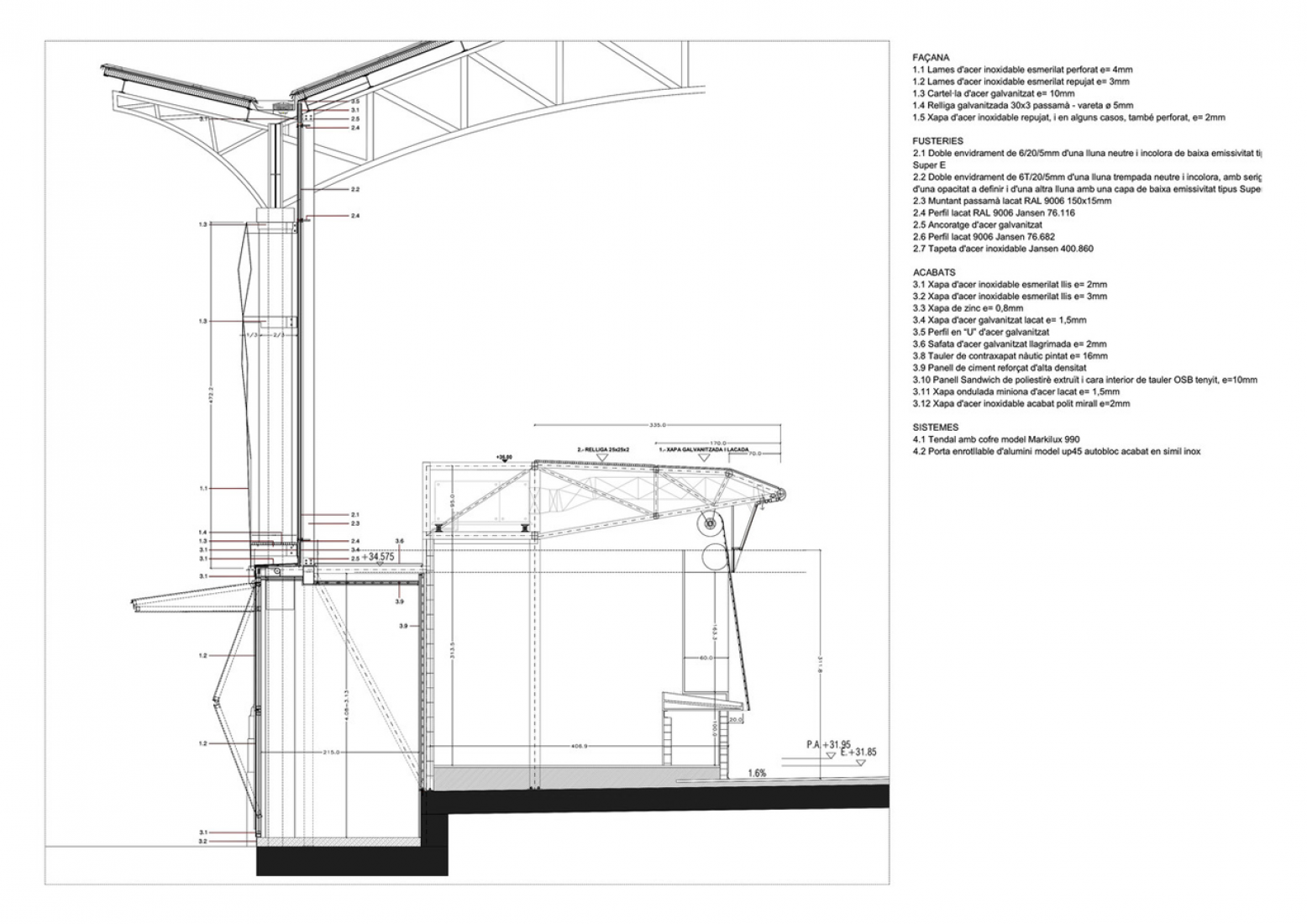
Redesigning the façades and roofs.- Façades and roof have been redesigned to let natural light shine in while controlling direct solar radiation which could harm the produce. This is achieved by a system of perforated slats that regulates the entry of natural light. Further, the side façades now integrate the outdoor stalls, which no longer extend out over much of the surrounding pavement.
 
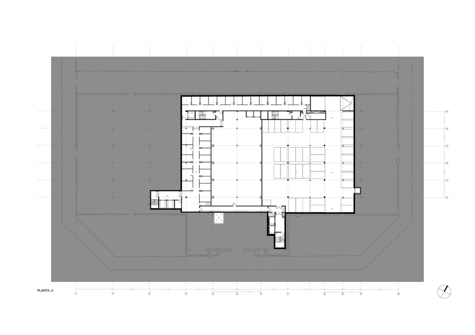
Usage of the subsoil.- To adapt the market to the present-day needs of logistics and installations, it was decided to excavate the subsoil, creating two underground floors that house the car park, a supermarket, loading bays and storage space. With the creation of this new space, the structure is raised, requiring work on the foundations.
 

Description of the project by Josep Lluís Mateo

The market, since its origins, has been a large covered place.

We conserve and repair the beautiful structure that supports that roof. Beneath, we dig into the site to introduce new services that complement sales activity: logistics, parking, installations.

Rather than changing the visible volume, we change the surfaces that enclose it to improve the conditions of use and space, control the entrance of daylight and organize the adjacent urban space, integrating the presence of the outdoor stalls.

The interior is like a city. Two orthogonal axes (N-S and E-W) form the layout along which the stalls are organized, with the emphasis on their individuality. A large open foyer space on Carrer de Mallorca receives visitors. It is a plaza leading into this virtual city of commerce.

The inside space, bathed in the milky light we filter in from the exterior, is a hive of activity.
On the outside, the skins with which we clothe the existing structure open as they reach the ground to offer produce.

The market relates with the city by communicating its use; the streets and the plazas that are gained are places of exchange, not just of transit.

Read more
Read less

More information

Label
Architect
Text
Josep Lluís Mateo
+ + copy Created with Sketch.
- + copy Created with Sketch.
Label
Client
Text
IMMB-Institut Municipal de Mercats de Barcelona
+ + copy Created with Sketch.
- + copy Created with Sketch.
Label
Location
Text
Calle Mallorca 135, Barcelona
+ + copy Created with Sketch.
- + copy Created with Sketch.
Label
Surface
Text
16.184 sqm. m²
+ + copy Created with Sketch.
- + copy Created with Sketch.
Label
Dates
Text
Contest: 2008; Construction: 2010-2015
+ + copy Created with Sketch.
- + copy Created with Sketch.
Label
Structural Engeering
Text
BOMA
+ + copy Created with Sketch.
- + copy Created with Sketch.
Label
Instalations Engeeniring
Text
Mur Garganté
+ + copy Created with Sketch.
- + copy Created with Sketch.

Josep Lluís Mateo was born in Barcelona (1949) and graduated in Architecture in 1974 from the ETSAB, later obtaining his PhD (cum laude) from the Polytechnic University of Catalonia in 1994. He is also Professor Emeritus, Doctor of Architecture and Design at ETH Zurich (Swiss Federal Institute of Technology). He has taught and lectured at major academic institutions worldwide, including the Getty Foundation in Los Angeles (Scholar), the Berlin Sommer Akademie, and Harvard Graduate School of Design (Guest Professor), among others.

In 1991, he founded mateoarquitectura, a practice based in Barcelona that has developed a broad range of projects—office buildings, urban planning, public spaces, housing—always with a strong international focus. Mateo’s practice is currently involved in a number of local and international projects such as the new Film Theatre of Catalonia in Barcelona, the new headquarters for PGGM Pension Fund Company in Zeist, Holland, and the office building on the former site of Renault factories in Boulogne-Billancourt, Paris, among others.

With each of his projects, Mateo seeks to connect the practice of construction with research and development in both intellectual and programmatic terms. His work lies at the intersection between conceptual thinking and built reality, combining technical rigor with ongoing inquiry. His architecture has been widely published and exhibited globally, receiving numerous awards and honors. In 2011, he received the Aplus Award for Best Career Achievement; in 2019, DOMUS named him among the 100 best architecture studios worldwide; and in 2021, he was named Author of the Year by the Juanzong Archive Awards (China).

Among his most significant projects in Spain are the Toni Catany International Photography Center in Mallorca, the Barcelona International Convention Center (CCIB), the Filmoteca de Catalunya, the renovation and extension of the Mercat del Ninot in Barcelona, and the paving of the historic center of Ullastret. Internationally, his work includes the headquarters for PGGM in Zeist (Netherlands), La Factory office building in Boulogne-Billancourt, the ESMA School in Montpellier, and the Castelo Branco Cultural Center.

Academic collaborations and teaching:
Josep Lluís Mateo has been Professor of the Architecture Department at the Swiss Federal Polytechnic in Zurich (ETH-Z) since 2002. He has also taught and lectured at numerous institutions around the world, including Princeton, Columbia University in New York, the Harvard Graduate School of Design, ABK Stuttgart, UP8 Paris, OAF Oslo and ITESM Mexico. He was Visiting Scholar at the Jean P. Getty Center in Los Angeles from 1991 to 1992. Josep Lluís Mateo is President since 2009 of the Board of Directors of the Barcelona Institute of Architecture. He has been a member of a number of juries and expert committees, including the Quality Committee of Barcelona City Council (2000-2008), and for prizes such as the European Landscape Award and the Thyssen Award.

Recent exhibitions and prizes:
The practice’s work has been exhibited on numerous occasions thanks to its international influence. New York’s MoMA devoted a space in the exhibition “Spain: On Site” (2006) to its apartment building in Valencia for the Sociopolis Project. Individual exhibitions include those at Ras Gallery (Barcelona, 2009), Architekturgalerie Aedes (Berlin, 2004), Architekturzentrum Wien (Vienna, 1998), Col•legi d’Arquitectes de Catalunya (Barcelona, 1998),Galerie Fragner (Prague, 1998), Galerie Aedes (Berlin, 1994), Architekturgalerie Luzern (Luzern, 1992) and Architekturgalerie Munich (Munich, 1991).

The work of Josep Lluís Mateo has been awarded many prizes, including:
- Top International Purpose-Built Venue 2008, First Prize. Best International Convention Centre category.
Organized by C&IT magazine, London. Project: CCIB-Barcelona International Convention Centre
- 2008 Archizinc Award, First Prize. Collective Housing category. Project: Sant Jordi Students’ Hall of Residence, Barcelona
- European Union Prize for Contemporary Architecture - Mies van der Rohe Award 2005, Runner-up. Project: CCIB- Barcelona International Convention Centre
- 15th Award of Grupo Dragados de Arquitectura.

Read more

Adrià Goula Sardà (Barcelona, 1973) was formed in the School of Architecture in Barcelona where he obtained a degree in architecture in 2000 and a Diploma of Advanced Studies in 2007. He works as an architect in various offices in Barcelona (Enric Miralles (EMBT) and Coll-Leclerc arquitectos, etc..) and Paris (Yves Lion architectes et urbanistes) and in 2005 founded his firm "aH! arquitectura" together with Helen Silvy-Leligois.

Alongside professional start in photography of architecture, which will become its main activity. In this area, performs work for renowned architects locally and internationally (Yves Lion, Josep Mias, Josep Lluis Mateo, Eduard Bru, Vicente Guallart, Fermin Vazquez (b720 architects), Eva Prats and Ricardo Flores, etc.), and to various public and private institutions (City of Barcelona, Barcelona Metropolitan Area (MMAMB) Contemporary Culture Centre of Barcelona (CCCB), Musée des Monuments Français, Aéroports de Catalunya, Escofet, etc..)

Has published several monographic books: "On building of Josep Lluis Mateo" (Ed. Actar), "b720" (TC quadernos), " Ciutat Vella de Barcelona: memòria urbà d'un proces" (Ed. Criteria) and "Barceloneta Market of Josep Mias "(Ed. Actar) and has collaborated with multiple books and magazines, national and international (METALOCUS, AV, Domus, Abitare, Quaderns, AMC, Frame, On diseño, Arquitectura y Diseño, C3, Detail, etc ...). He has also been a professor of photography at the Escola Sert in Barcelona, has participated in several workshops and has lectured at various universities and schools.

He also developed a personal photo work beyond the architecture, that has been exposed individually in Paris ("NY" in Salón de Torigny, November 2003), Bordeaux ("Murs" in June 2009 and "Vietnam" in April 2011 in Atélier Dartois) and Barcelona ("NY" in June 2004 and "De-Construcción" in June 2010 in the Col.legi d'Arquitectes de Catalunya). Currently, he's preparing an exhibition at the Gallery Kowasa in Barcelona for September 2012. He also published a book of his personal work "De-Construcción" by Fundación Esteyco in November 2009.

Read more
Published on: April 22, 2016
Cite:
metalocus, ANDREA PORTILLO
"Remodeling of El Ninot Market in Barcelona [II]" METALOCUS. Accessed
<http://www.metalocus.es/en/news/remodeling-el-ninot-market-barcelona-ii> ISSN 1139-6415
Loading content ...
Loading content ...
Loading content ...
Loading content ...
Loading content ...
Loading content ...
Loading content ...
Loading content ...
Loading content ...
Loading content ...
Loading content ...
Loading content ...
Loading content ...
Loading content ...
Loading content ...
Loading content ...
Loading content ...
Loading content ...
Loading content ...
Loading content ...
Loading content ...
Loading content ...
Loading content ...
Loading content ...
Loading content ...
Loading content ...
Loading content ...
Loading content ...
Loading content ...
Loading content ...
Loading content ...
Loading content ...
Loading content ...
Loading content ...
Loading content ...
Loading content ...
Loading content ...
Loading content ...
Loading content ...
Loading content ...
Loading content ...
Loading content ...
Loading content ...
Loading content ...
Loading content ...
Loading content ...
Loading content ...
Loading content ...
Loading content ...
Loading content ...
Loading content ...
Loading content ...
Loading content ...
Loading content ...