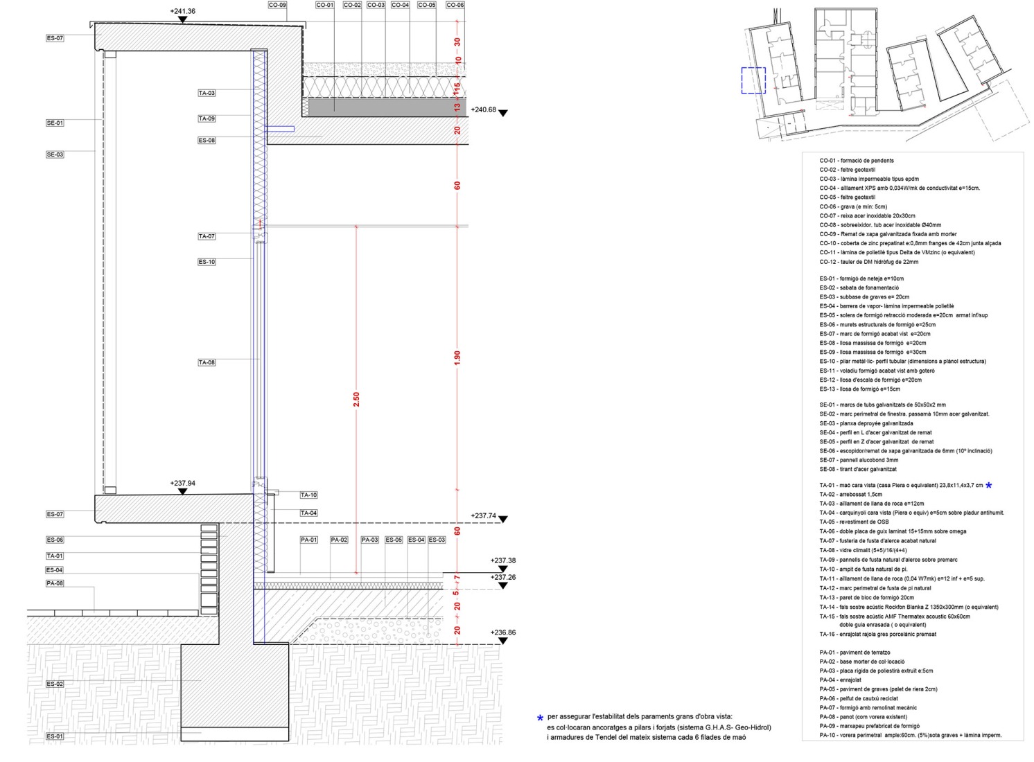
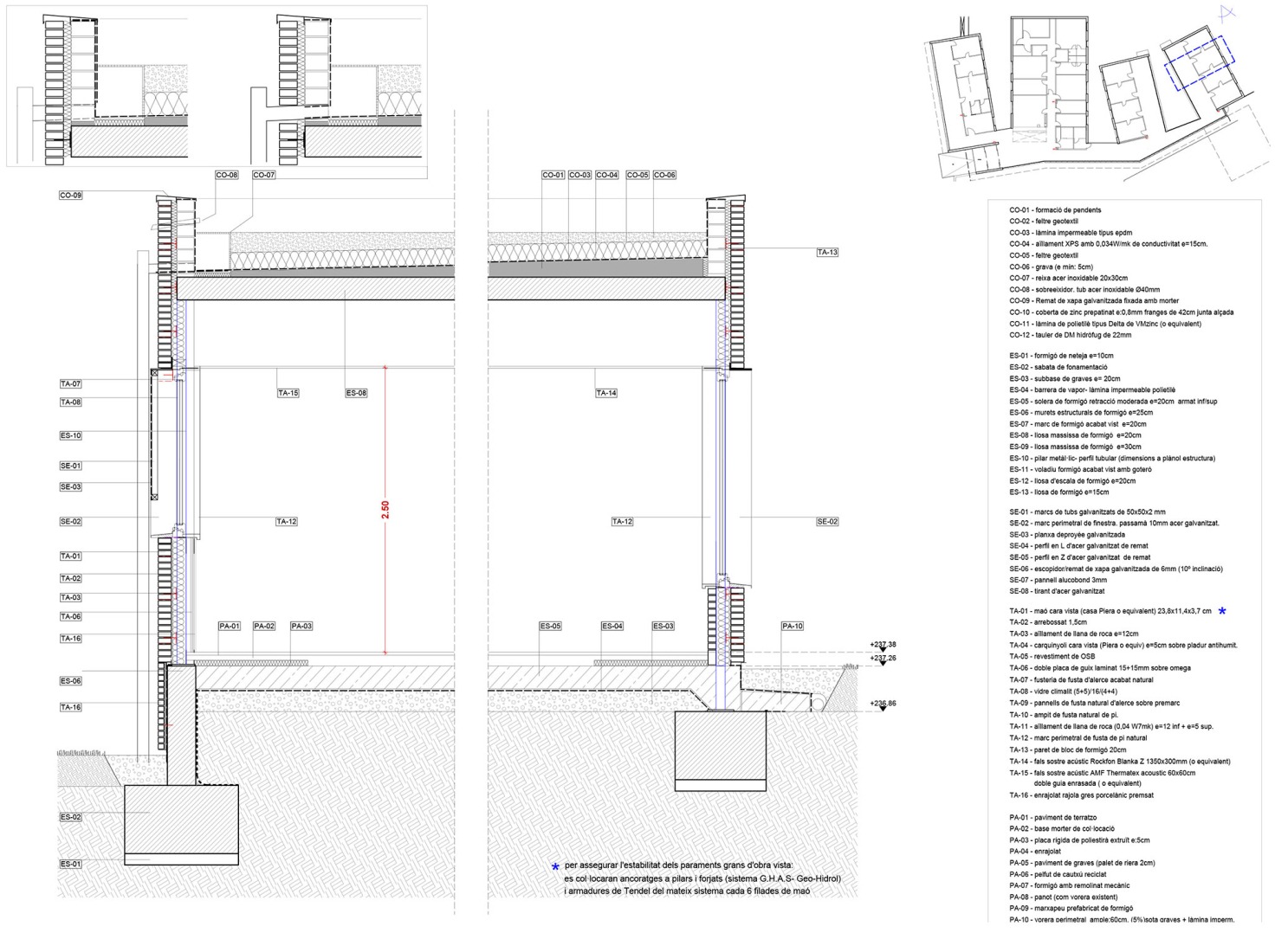
The self-supporting 23.8 x 11.4 x 3.7 cm brick used on the outside is arranged on the inside with an intermediate air chamber that allows the placement of thermal insulation. It is combined with exposed reinforced concrete walls that support two cantilevers and the large skylights. For the carpentry, larch wood is used and interior doors are made of three-layer fir.
Centro de salud primaria Can llong por Comas-Pont arquitectes. Fotografía por Adrià Goula.
Descripción del proyecto por Comas-Pont arquitectes
The new CAP is located in the middle of the urban area of Sabadell, next to the Masia of Can Llong, built in the sixteenth century and with volumetric protection due to its architectural value.
The building is organised around a zigzagging axis of circulation that connects the 4 programmatic volumes and visually opens, along its entire route, to the farmhouse and the new pedestrian area that connects with the existing civic centre. These volumes adapt to the topography and rotate slightly, allowing the appearance of plant courtyards that help to preserve the privacy of the consulting rooms and waiting rooms while introducing vegetation into the interior of the building.
The fragmentation of the program into different volumes achieves a more domestic scale of the building. The natural materials of the interior spaces with wood and ceramics, as well as the naturalization of the patios, manage to create a relaxed atmosphere of well-being essential for the users of this service.
The main façade and the access to the building open onto the main traffic route: Europa Avenue, through an access plaza that helps to give the building representativeness.
Can llong primary health care centre by Comas-Pont arquitectes. Photograph by Adrià Goula.
Materiality
The aim is to integrate the Primary Health Care Centre with the surrounding buildings, so as a Facility it is already sufficiently differentiated from the existing urban fabric due to its scale and unique geometry. For this reason, exposed ceramic is used as a façade skin, in addition to being a local and low-maintenance material.
The same ceramics also appear on the interior walls, providing visual continuity between interior and exterior, reinforcing the idea of boxes of regular geometry.
The manual ceramic piece used, with dimensions of 23.8 x 11.4 x 3.7 cm, reinforces the domestic scale of the building, managing not to impose the building on the environment and presenting a more user-friendly health building.
A self-supporting exterior enclosure anchored to the structure is proposed to give continuity to thermal insulation and avoid thermal bridges. The combination with exposed concrete walls allows the two cantilevers, which support the large skylights.
Larch wood carpentry is used to reinforce the use of natural materials, as well as the fir three-layer inside access doors to the consultations.
Can llong primary health care centre by Comas-Pont Arquitectes. Photograph by Adrià Goula.
Can llong primary health care centre by Comas-Pont Arquitectes. Photograph by Adrià Goula.
Landscaping
Vegetation is an important element in the conception of the project. Apart from colonizing the courtyards inside the plot, deciduous trees are spread on the south face, acting as solar felt for the building and improving, in the medium term, its thermal behaviour naturally and economically.
The concept in which the building is enveloped with vegetation has visual and acoustic benefits, especially taking into account the intensity of the road traffic in the surroundings and makes the new building a turning point between the intense pace of the avenue and the slowdown of the new pedestrian area around the Masia. The vegetation was implemented later in February-March 2023 to favour the ideal planting season.
Sustainability
Passive cross-ventilation solutions thanks to the courtyards, the natural lighting of all the spaces, and the use of rainwater for irrigation and solar protection, achieve an energy-efficient building with a good ecological footprint and a class A energy classification.