Nizio Design International designed a minimalist façade made of concrete with film tape-like perforations as inspiration from Animated Film Studio heritage.
The construction of the new building appears to be “suspended” above the ground floor giving visitors the illusion that it’s supported directly by glass.
The power of harmony - comprehensive renovation of the historic Roth Villa combined with the minimalistic design of the new interactive centre creates dynamics like in an animated movie.
The green area design around the building includes a built-in auditorium for cartoon screenings, which also saves space for physical activity (facilities based on machines known from Polish films will be introduced there).

The Interactive OKO Story and Animation Center by Nizio Design International. Photograph by Marcin Czechowicz.

The Interactive OKO Story and Animation Center by Nizio Design International. Photograph by Marcin Czechowicz.
Project description by Nizio Design International
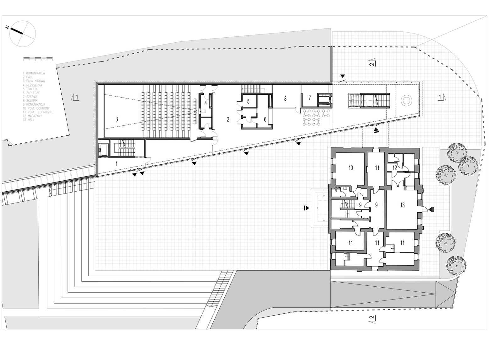
The Interactive OKO Story and Animation Center in Bielsko-Biała was officially opened in May 2024 and continues to attract the visitors over holiday period. Nizio Design International was responsible for the architectural design of this new facility, which is part of the Polish Animated Film Studio, as well as the renovation of the historic Roth Villa, and the development of the surrounding site. Modern museum combined with theme park brings to mind exhibitions usually located by motion picture studios abroad. The holistic space approach is still fresh in the Polish design market.
Founded in 1947, the Animated Film Studio in Bielsko-Biała is one of Poland’s most important animation centers. Iconic cartoons and characters were created here, entertaining generations: Bolek and Lolek (1963), Reksio (1967), and Professor Baltazar Gąbka with the Wawel Dragon and Bartholomew Bartolini (1969). The studio collaborated with outstanding creators like Zbigniew Lengren, Jan Szancer, Józef Szajna, Jan Brzechwa, Ludwik Jerzy Kern, Krzysztof Komeda and Krzysztof Penderecki.
The mission of the newly opened Interactive OKO Story and Animation Center is to highlight the phenomenon of the Animated Film Studio. One element that symbolically links heritage with modernity is the minimalist façade made of architectural concrete with film tape-like perforations.
Respect for tradition with a modern twist
In 2016, Nizio Design International studio won an architectural competition. The jury awarded the first prize for “accurate urban-architectural solutions, particularly: (1) the articulation of the corner of the urban space with a clearly defined entrance area, (2) the creation of an internal courtyard seamlessly transitioning into green recreational areas, (3) the appropriate proportions and scale of the new construction in relation to the historical building”.
The realization of The Interactive OKO Story and Animation Center in Bielsko-Biała took over four years in total. It was divided into two stages: first, the historic Roth Villa, the headquarters of the Animated Film Studio, was revitalized. The next step was the construction of the new building along with a connector and the development of the surrounding site.
Apart from the mentioned façade, the unique construction of a section of the new building is also noteworthy. It appears to be “suspended” above the ground floor, giving visitors the illusion that it’s supported directly on glass, without any visible supports. Furthermore, the space appears optically enlarged, and the interior of the building is visually integrated with the outdoor space.
Multifunctional space in the capital of Polish animation
In the entrance area of the new building, the architects placed a hall, a souvenir shop, a reception, and a buffet. The ground floor also features a cinema hall with about 120 seats, where film screenings, multimedia shows, conferences, lectures, and cultural events will take place, both related to the educational path and the Center’s exhibition as well as independently organized ones. The main exhibition area is located on the first and second floors of the new building. The first floor also houses a digital materials archive. The second floor features a conference room and an animators’ room. On the same level, there is a passage between the buildings. The connector, with its transparent glass walls, provides an interesting viewpoint on the structures of both buildings and the adjacent streets and surroundings.
Power of harmony
In the existing historic building, the architects did not introduce significant functional changes. Construction and renovation works were carried out, primarily involving the replacement of (interior floors, some interior plasters, radiators, and the necessary range of sanitary installations, and lighting fixtures along with the necessary range of electrical and telecommunication installations), as well as comprehensive façade renovation.
"We aimed to create a harmonious connection between the new structure and the historic, decorated façade. I believe we succeeded in making a cohesive and balanced design that respects heritage while adding new quality. The same goes for fitting the minimalist building into the traditional urban setting: skillfully built contrasts add dynamism and make the project more interesting."
Mirosław Nizio.