El estudio aleman de arquitectura, Behet Bondzio Lin architekten, ha realizado un edificio de oficinas en Münster, con una fachada de ladrillos que crea un contraste entre la transparente fachada sur y las fachadas cerradas al este, sur y oeste.
Behet Bondzio Lin architekten tomó la inspiración para la fachada de ladrillo del doblez de alabastro de la estatua de Beethoven de Max Klinger, que se encuentra en el Museo de Fotografía de Leipzig. El espectador ve una bufanda ligera aparentemente fluida sobre las rodillas de Beethoven y reconoce al mismo tiempo que consiste en piedra sólida.

Siguiendo esta imagen, Behet Bondzio Lin architekten emplea seis piedras especiales con un variaciones que aumenta en gradiente, creando una fachada de luces y sombras aparentemente en movimiento. La analogía con una tela ligera sobre la cual sopla el viento surge.
 

Descripción del proyecto por Behet Bondzio Lin architekten

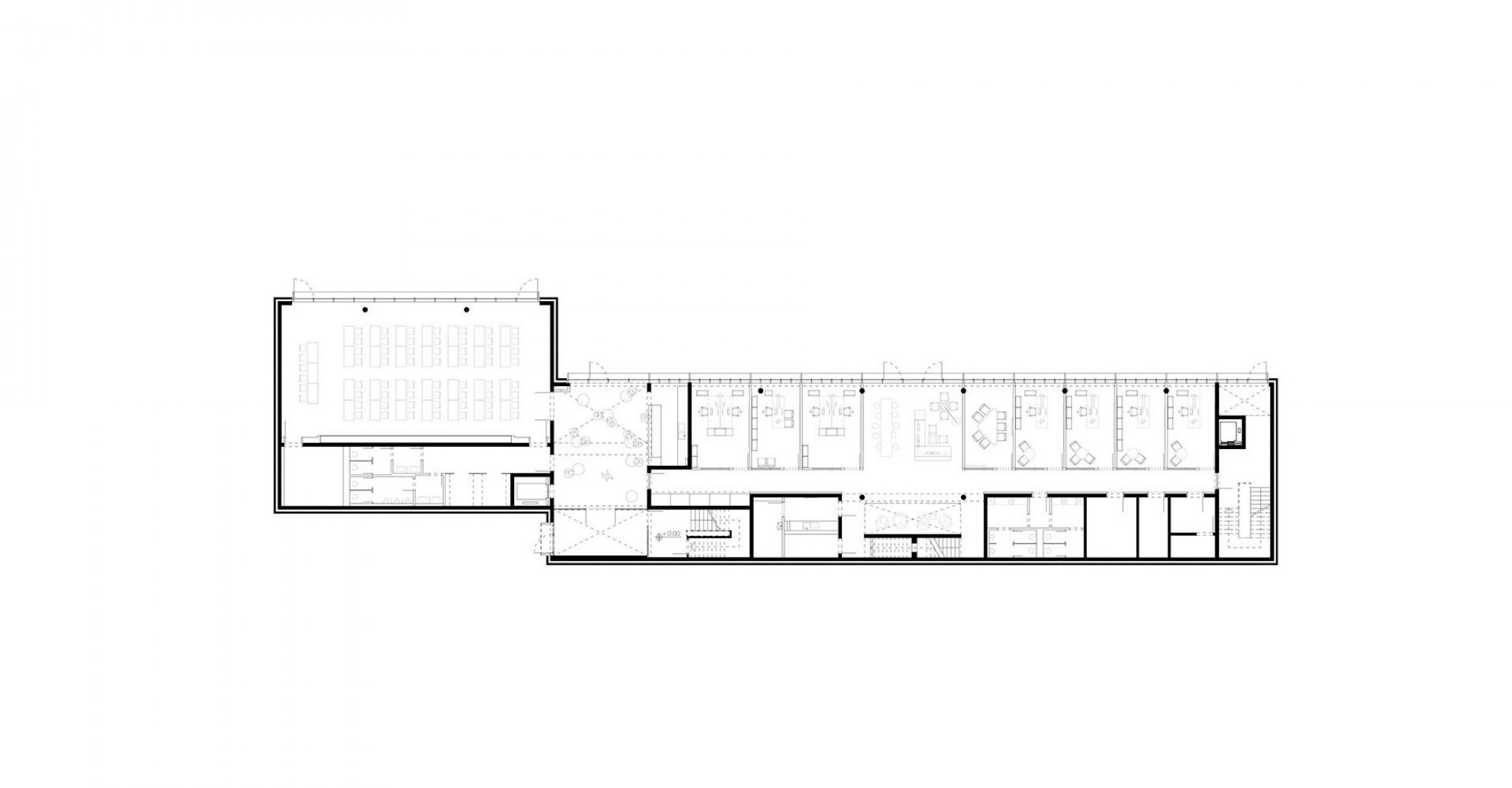
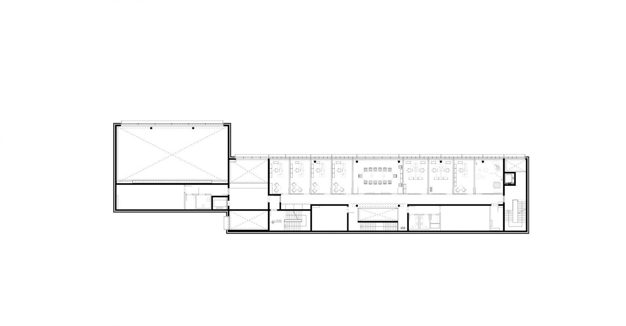
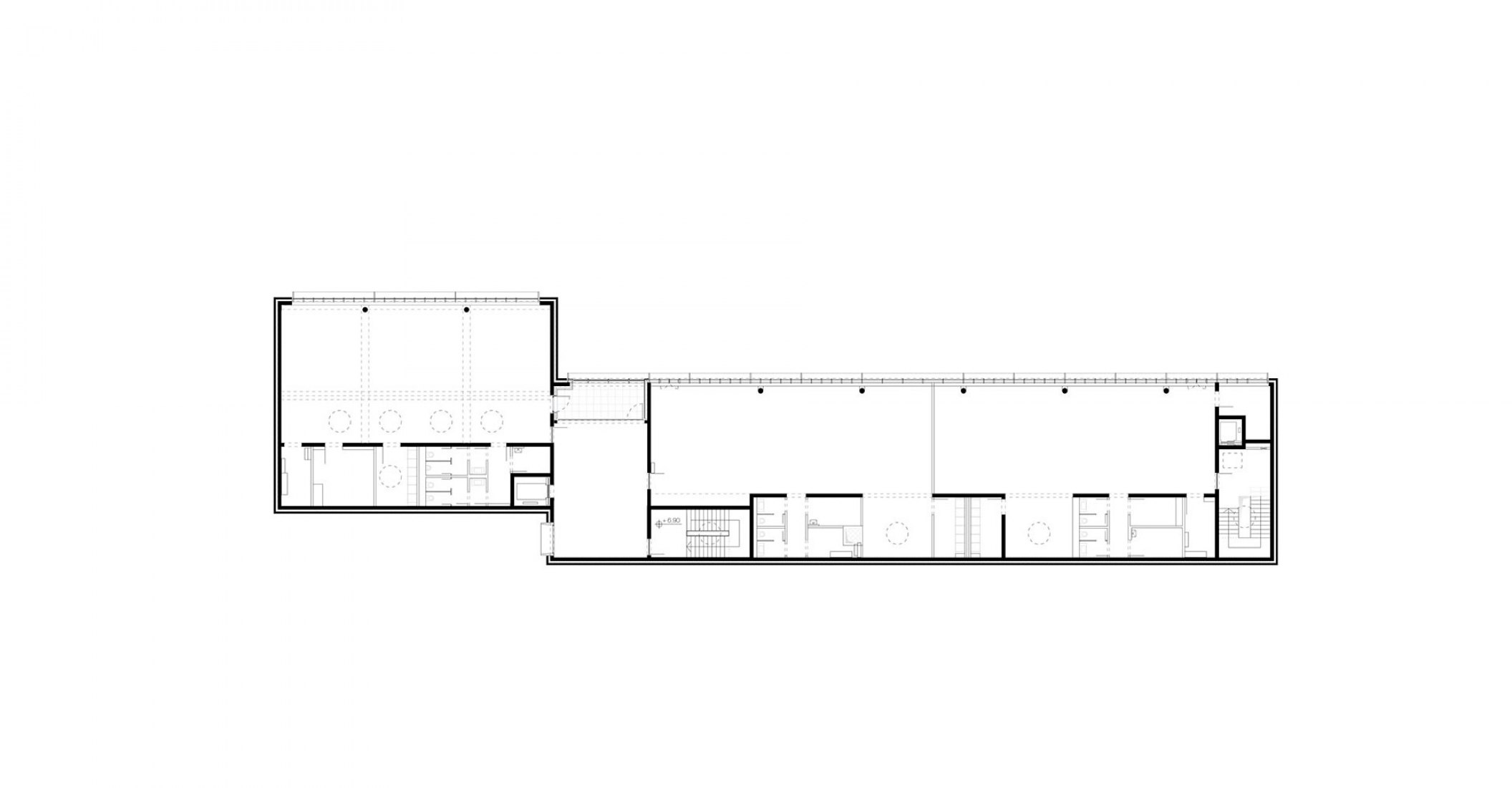
El concepto de diseño del edificio para la Asociación de la Industria Textil y de Vestimenta del Noroeste Alemán tiene como objetivo proporcionar a todos los empleados una vista del pintoresco paisaje del norte y dar la bienvenida a aquellos que llegan del sur con una imagen textil fuerte.

La estructura alargada está rodeada por tres lados por una fachada de ladrillo completamente cerrada. El volumen, cerrado hacia el este, sur y oeste y abierto hacia el norte, es la base de un edificio de oficinas optimizado para la energía.

La inspiración para la fachada de ladrillo es el doblez de alabastro de la estatua de Beethoven de Max Klinger, que se encuentra en el Museo de Fotografía de Leipzig. Max Klinger creó una percepción paradójica aquí. El espectador ve una bufanda ligera aparentemente fluida sobre las rodillas de Beethoven y reconoce al mismo tiempo que consiste en piedra sólida.

Siguiendo esta imagen, behet bondzio lin architekten emplea seis piedras especiales con un variaciones que aumenta en gradiente, creando una fachada de luces y sombras aparentemente en movimiento. La analogía con una tela ligera sobre la cual sopla el viento surge.

La separación y el fácil movimiento del volumen del edificio crea un área previa que recibe a los usuarios y visitantes y los conduce al edificio. Al norte, se abre casi por completo sobre una fachada de vidrio al paisaje excepcionalmente hermoso. Debido a la orientación norte, todas las habitaciones cuentan con luz natural y no requieren protección solar. Esto permite incluso en pleno verano la visión a tiempo completo de los empleados en el campo.

---

The design concept of the building for the Association of the Northwest German Textile and Garment Industry aims to provide all employees with a view of the picturesque landscape to the north and to welcome those arriving from the south with a strong textile image.

The elongated structure is enclosed on three sides by a completely closed brick façade. The volume, closed to the east, south and west and open to the north, is the basis for an energy-optimized office building.

The inspiration for the brick facade is the alabaster fold of the Beethoven statue by Max Klinger, which is in the Leipzig Picture Museum. Max Klinger created a paradoxical perception here. The viewer sees a seemingly fluent light scarf over the knees of Beethoven and recognizes at the same time that it consists of solid stone.

Following this image, behet bondzio lin architekten employ six special stones with a gradient that increases in gradient, creating a seemingly moving façade of light and shadow. The analogy to a light cloth over which the wind blows arises.

The separation and easy movement of the building volume creates a pre-area that receives the users and visitors and leads them into the building. To the north it opens almost completely over a glass facade to the exceptionally beautiful landscape. Due to the north orientation, all rooms are well supplied with daylight and do not require sun protection. This allows even in midsummer the full-time view of the employees in the countryside.

 

 

Leer más
Contraer

Más información

Label
Arquitectos
Text
Behet Bondzio Lin Architekten. Equipo de proyecto.- Stefanie Gaasch, Tim Kossel, Ines Schulte, Pavla Briksova, Anika Schneider
+ + copy Created with Sketch.
- + copy Created with Sketch.
Label
Cliente
Text
Verband der Nordwestdeutsche Textil- und Bekleidungsindustrie e.V.
+ + copy Created with Sketch.
- + copy Created with Sketch.
Label
Superficie
Text
2.162 m²
+ + copy Created with Sketch.
- + copy Created with Sketch.
Label
Fechas
Text
2014 - Terminado.- 2017
+ + copy Created with Sketch.
- + copy Created with Sketch.
Label
Fotografía
Text
Thomas Wrede VG Bild-Kunst Bonn, Reimund Braun, behet bondzio lin architects
+ + copy Created with Sketch.
- + copy Created with Sketch.

Behet Bondzio Lin Architekten es estudio de arquitectura interdisciplinario con sede en Münster y Leipzig, y operaciones adicionales en Taiwán. Se fundó en 2003 y está formado por Martin Behet, Roland Bondzio, Yu-han Michael Lin.

Su objetivo es planificar y construir edificios con un diseño preciso, de alta calidad y una construcción inteligente. El diálogo con sus clientes y dentro del equipo, el análisis de los emplazamientos y los requisitos, y la investigación exhaustiva determinan sus procesos de trabajo y diseño. Este enfoque da lugar a soluciones independientes y naturales, incluso para proyectos de construcción complejos, con un alto grado de identidad y sensualidad. El estudio quiere que cada uno de sus clientes se identifique con orgullo y satisfacción en los proyectos que desarrollan juntos. La planificación y la ejecución minuciosas, así como la gestión profesional de los procesos, son su sello distintivo.

Martin Behet, nacido en 1965 en Colonia. Formación de carpintero. Estudios de arquitectura TU Braunschweig; ETH Zúrich. Silla Per Krusche. Estancias profesionales: GPS Gondesen Piachnow Staack, Braunschweig; Gatermann, Schossig & Partner, Colonia; Kister Scheithauer Gross, Colonia; Manfred Bukowski, Munster. 2000 Fundación de la oficina Behet + Bondzio. 2003 Fundación de la oficina behet bondzio lin Architekten Münster | Leipzig | Taichung. Desde 2017 miembro de la junta directiva de BDA Münster-Münsterland.

Roland Bondzio, nacido en 1966 en Bielefeld. Estudios de arquitectura TU Braunschweig; ETSABarcelona; Centro de Arquitectura de Viena. Presidente Meinhard von Gerkan. Carrera: Casa Blanca, Brunswick; Enric Miralles, Barcelona; Walter Gebhardt, Hamburgo; Bolles + Wilson, Munster. 2000 Fundación de la oficina Behet + Bondzio. 2003 Fundación de la oficina behet bondzio lin Architekten Münster | Leipzig | Taichung. Docencia: Asistente de Investigación en la Cátedra de Diseño y Construcción, Universidad de Hannover. Tareas docentes en la Universidad de Ciencias Aplicadas de Zwickau y la Escuela de Arquitectura de Münster. Desde 2014, presidente del consejo asesor de diseño de la ciudad de Greven. Miembro de la Förderverein Bundesstiftung Baukultur e.V. Desde 2015 miembro de la junta directiva de BDA Münster-Münsterland

Yu-han Michael Lin, nacido en 1967 en Taipéi. Estudió arquitectura en la Universidad de Tunghai, Taizhong, Taiwán; Escuela de Graduados de Diseño de Harvard, Cambridge, Estados Unidos. Cátedra Rafael Moneo. Carrera: Fei & Chen Partner, Taipei, Taiwán; And8, Hamburgo; Bolles + Wilson, Munster. 2003 Fundación de la oficina behet bondzio lin Architekten Münster | Leipzig | Taichung. Conferenciante: Profesor Visitante Departamento de Arquitectura Universidad Shih Chien, Taipei, Taiwán. Profesor Asociado, Instituto de Graduados en Arquitectura NCTU, Ciudad de Hsinchu, Taiwán. Profesor Asociado, Departamento de Arquitectura de la Universidad de Tunghai, Taichung, Taiwán

Leer más
Publicado en: 20 de Diciembre de 2017
Cita:
metalocus, ÁNGEL BLANCO
"Nueva sede de la Asociación del Textil Alemán del Noroeste por Behet Bondzio Lin Architekten" METALOCUS. Accedido el
<http://www.metalocus.es/es/noticias/nueva-sede-de-la-asociacion-del-textil-aleman-del-noroeste-por-behet-bondzio-lin-architekten> ISSN 1139-6415
Loading content ...
Loading content ...
Loading content ...
Loading content ...
Loading content ...
Loading content ...
Loading content ...
Loading content ...
Loading content ...
Loading content ...
Loading content ...
Loading content ...
Loading content ...
Loading content ...
Loading content ...
Loading content ...
Loading content ...
Loading content ...
Loading content ...
Loading content ...
Loading content ...
Loading content ...
Loading content ...
Loading content ...
Loading content ...
Loading content ...
Loading content ...
Loading content ...
Loading content ...
Loading content ...
Loading content ...
Loading content ...
Loading content ...
Loading content ...
Loading content ...
Loading content ...
Loading content ...
Loading content ...
Loading content ...
Loading content ...
Loading content ...
Loading content ...
Loading content ...
Loading content ...
Loading content ...
Loading content ...
Loading content ...
Loading content ...
Loading content ...
Loading content ...
Loading content ...
Loading content ...
Loading content ...
Loading content ...