The refurbishment of the Padre Jofre penthouse by the architectural studio Mano de Santo is located in the city of Valencia. The project is the result of a process that took a long time due to the previous state of the building.

On the other hand, due to the different modifications that took place in the building and specifically the installation of a new lift, changes were made to the initial configuration of the attic. In this way, the central part of the house was occupied.
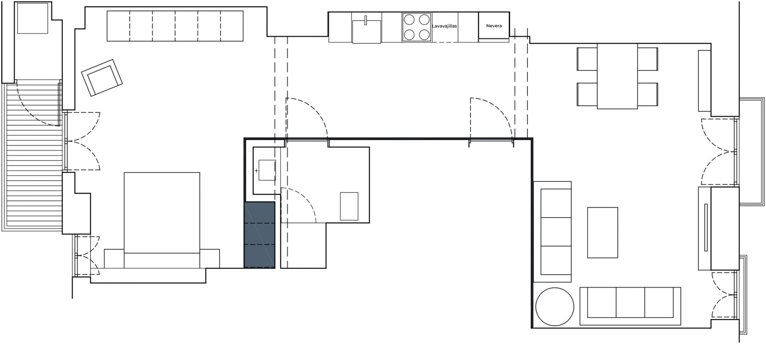
In the small Padre Jofre attic by the architectural studio Mano de Santo, the roof was made visible, giving continuity and visibility to the space, cleaned and treated with a varnish to highlight its materiality. In addition, the central core was regularised, which was interesting as it was used to organize the house without partition walls.    

Concerning the materials used, a new floor was laid in such a way that it resembled ceramic carpets. In addition, cement wood panelling was used for the central core. The bathroom, on the other hand, was given a continuous finish.
 

Description of project by Mano de Santo

The project is the result of a process that took a long time due to the general state of the building where the attic was located. When the project began, the building was undergoing renovation, the works took much longer than planned and also modified the initial configuration of the penthouse: the central part of the penthouse was occupied by the new lift shaft.

During this process, we reflected together with our clients the first ideas about the space, changing some and reaffirming others, always with the initial premise of no to do so many things in the space ... and that was the idea ... to do nothing.

Or almost nothing, the small attic we already found with the ceiling exposed, and the core closed in the central area of the space due to the placement of the new lift ...we tried to take advantage of it.

The ceiling, well preserved, had to be the protagonist, and we made it visible throughout the house giving continuity and personality to the space, simply cleaning and a varnish treatment to highlight its materiality.

We regularised the central core, inserting the closed functional pieces required by the mini-dwelling programme, a bathroom and storage, giving it a continuous finish that did not compete with either the ceiling or the irregular party walls. Wood-cement panelling was used.

The location of the core was used to organise the dwelling without partition walls. The new lift core, which divided the space in two, was used to zonify (not compartmentalise) the space, simply following a criterion of privacy.

A new floor was laid, taking advantage of some existing tiles that were laid as ceramic carpets; the sharing walls were covered with plasterboard to insulate the walls acoustically, and the furniture was installed and nothing else.

Read more
Read less

More information

Label
Architects
Text
Mano de Santo. Lead architects.- Francesc de Paula Garcia Martinez, Ana Gil Collado,Francisco Miravete Martín.
+ + copy Created with Sketch.
- + copy Created with Sketch.
Label
Area
Text
64.00 sqm.
+ + copy Created with Sketch.
- + copy Created with Sketch.
Label
Dates
Text
2020.
+ + copy Created with Sketch.
- + copy Created with Sketch.
Label
Location
Text
Padre Jofre street, Valencia, Spain.
+ + copy Created with Sketch.
- + copy Created with Sketch.
Label
Photography
+ + copy Created with Sketch.
- + copy Created with Sketch.
Mano de Santo, is an Architecture team based in Valencia and directed by Ana Gil, Francesc de Paula García and Francisco Miravete, who works on the development of projects, the creation of spaces and product design.

We understand our work as a continuous search process, committing ourselves to each project, letting ourselves be enveloped by its purpose, and its meaning. An intrinsic process based on the balance between creativity and knowledge, technology and tradition, reason and emotion.
Read more
Published on: June 18, 2022
Cite:
metalocus, CARLOS RUBIO
"Small modifications, new space. Padre Jofre penthouse by Mano de Santo" METALOCUS. Accessed
<http://www.metalocus.es/en/news/small-modifications-new-space-padre-jofre-penthouse-mano-de-santo> ISSN 1139-6415
Loading content ...
Loading content ...
Loading content ...
Loading content ...
Loading content ...
Loading content ...
Loading content ...
Loading content ...
Loading content ...
Loading content ...
Loading content ...
Loading content ...
Loading content ...
Loading content ...
Loading content ...
Loading content ...
Loading content ...
Loading content ...
Loading content ...
Loading content ...
Loading content ...
Loading content ...
Loading content ...
Loading content ...
Loading content ...
Loading content ...
Loading content ...
Loading content ...
Loading content ...
Loading content ...
Loading content ...
Loading content ...
Loading content ...
Loading content ...
Loading content ...
Loading content ...
Loading content ...
Loading content ...
Loading content ...
Loading content ...
Loading content ...
Loading content ...
Loading content ...
Loading content ...
Loading content ...
Loading content ...
Loading content ...
Loading content ...
Loading content ...
Loading content ...
Loading content ...
Loading content ...
Loading content ...
Loading content ...