Kart Projects set the house back from the north dividing wall to open windows and take advantage of natural light. The interior free height was increased to facilitate a feeling of spaciousness, adding a skylight in one of the gaps in the roof that helps bathe the interior of this part of the house in natural light. The garden is characterised by an elevated pool and a long concrete bench with an outdoor steel fireplace.
The materials and finishes used in the construction divide the house into two volumes and characterise its interior spaces. The first volume is identified by its light colours, with spaces for the children's bedrooms and the study. The second volume, in darker colours, houses the master bedroom and the private bathroom.

House K by Kart Projects. Photograph by Rory Gardiner.
Project description by Kart Projects
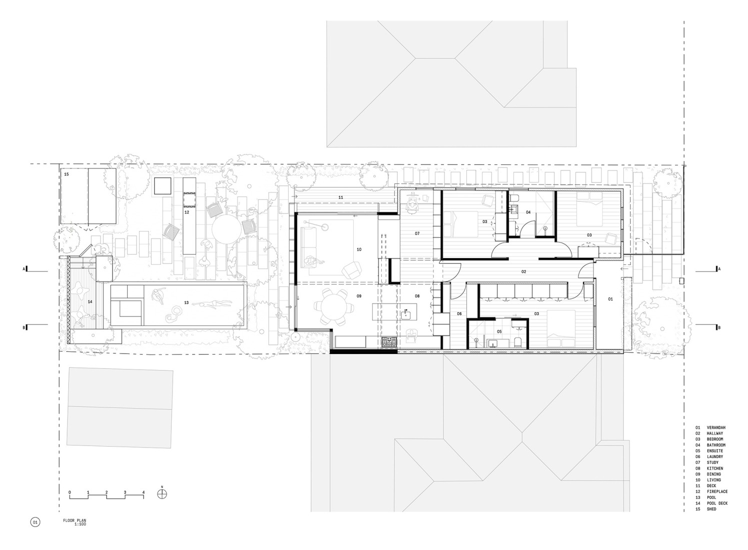
The clients of the house, a couple and their two children, wanted a single-storey house that retained as much of their garden as possible on a relatively small plot. The design strategy was to remove the old shed and add a small 50m² extension of connected living spaces, thereby increasing the total area of the house by only 30m², making the most of each space by superimposing functions rather than adding a new room for each.
The new extension is set back from the northern boundary to maximise natural light and create two living spaces. Inside, the coffered ceiling volumes above the extension reference the cellular plan of the existing clapboard house by creating a series of loosely defined spaces above each room. This gives a feeling of spaciousness and light by increasing the height of the ceiling where a skylight is added into one of these roof voids to bring natural light into the house. The new spaces are articulated around a storage volume housing a hidden retractable TV and other technological elements, as well as a daybed that creates a connecting space between the study (the last room in the existing house) and the new living room. The landscaping and pool continue this approach outside by superimposing different zones for planting, swimming and gathering. The garden is punctuated by the elevated pool, a long concrete bench and a custom steel outdoor fireplace.
Materials and finishes are applied in blocks of texture and color to define different elements or sections of the house. The existing house is divided into two: a light volume for the children’s bedrooms and study, and a darker, moodier volume housing the master bedroom, ensuite bathroom and hallway connecting to the new extension. The new spaces are much brighter and more stripped back, with a combination of terrazzo flooring, millwork, plywood walls and two minimalist black kitchen cabinets. Externally, the new addition is distinguished from the old house by a combination of dark cladding and a series of deep red frames and doors that give the façade depth and texture, protecting the openings.