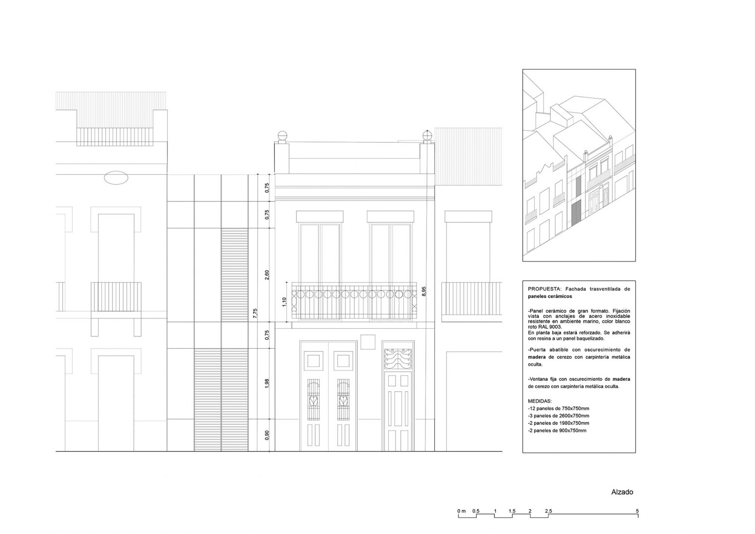
This intervention, more than a particular solution for a small specific case, proposes to be an exercise that serves as the basis for a system, a repeatable example applicable to other similar cases in the context. This project has served to experiment and verify the economy of time, resources, and a suitable budget for social housing in this environment.


Description of project by Estudio Alberto Burgos and Teresa Carrau Carbonell
The vernacular and the new, the handcrafted and the industrial, served spaces and service spaces. A house, a dichotomy. The project begins with a squatter house and a vacant site right next to it, in one of the most authentic neighborhoods in Valencia. The functional program is a house for a prototypical client, without first or last name.
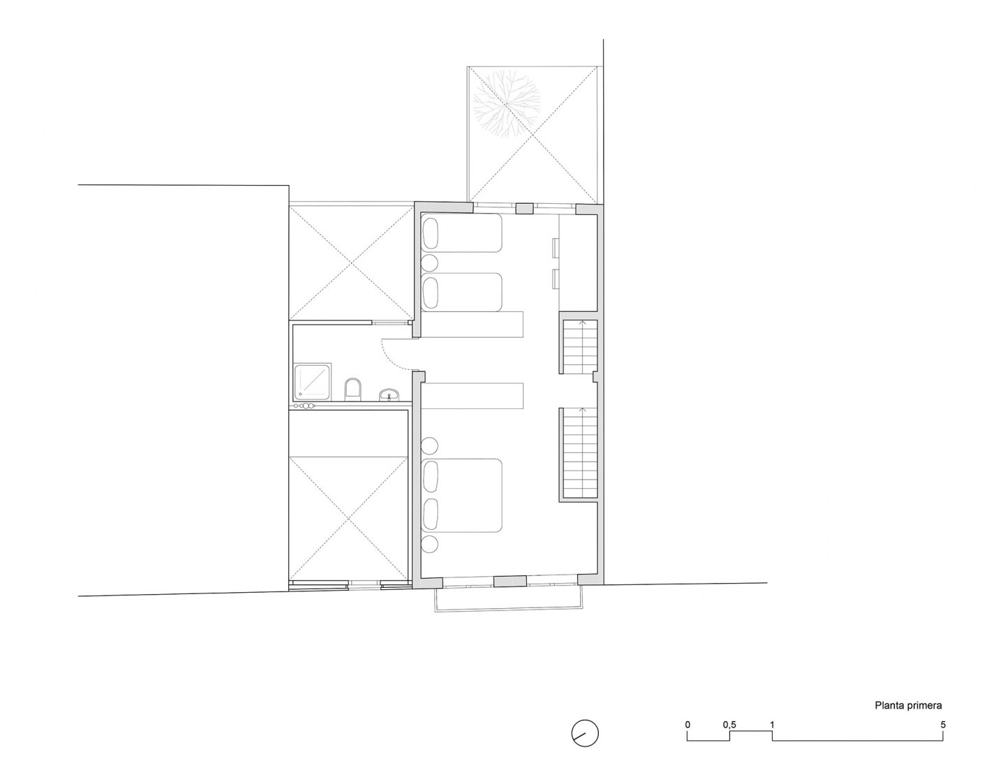
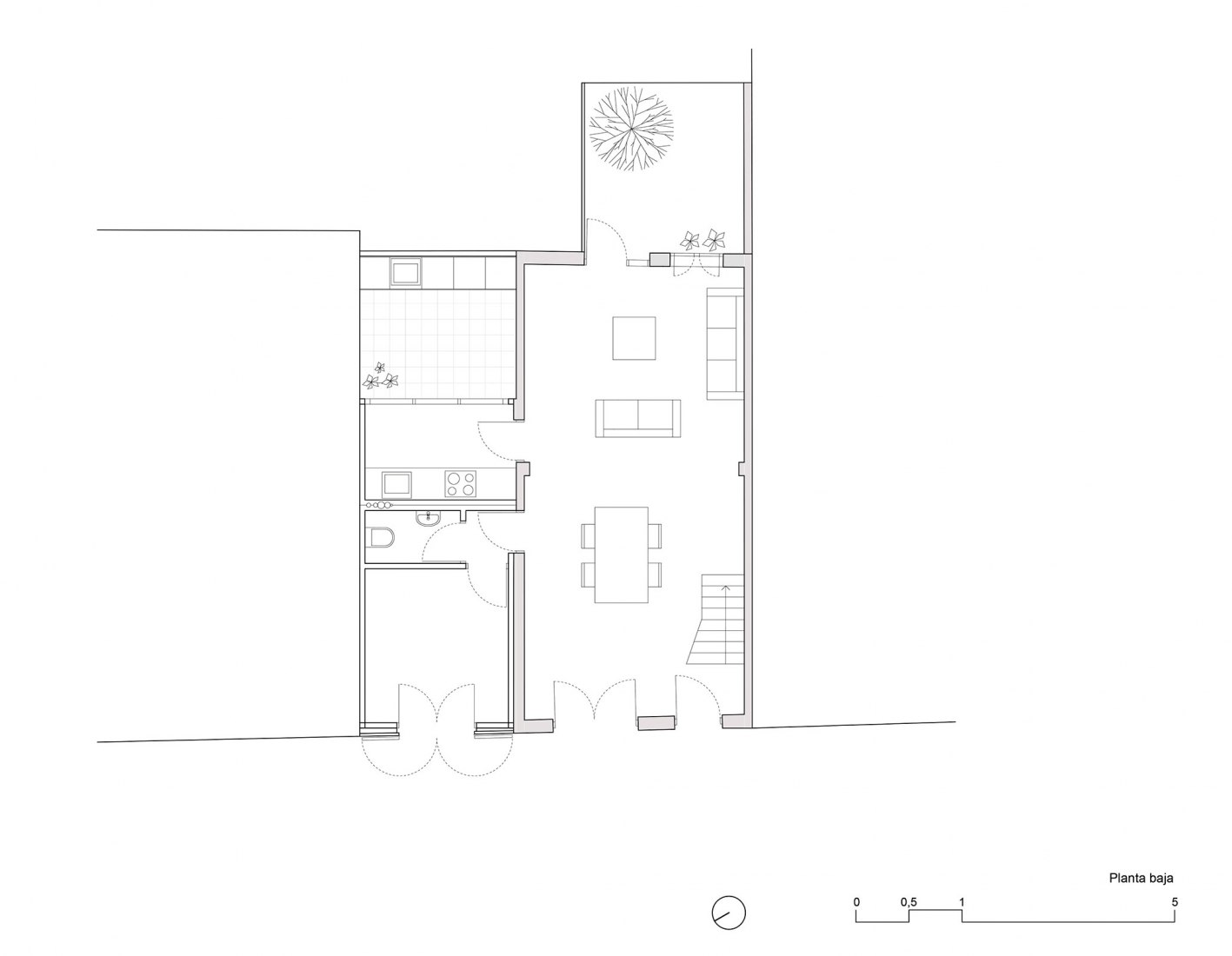
A dipole generates energy, energy to revitalize. The old house is restored, shines life, during the day on the ground floor and at night in the first floor. The motor, bathroom and kitchen, with their installations, are attached as a young and prefabricated volume.
New constructive techniques are injected in the vernacular grid of the surroundings, a prefabricated volume (2 prefabricated modules of 3x6m, from Casa Modular Dominó system) is dropped, giving installations to the historic house. Juxtaposing the technic with the tectonic, the artifice with the natural, work space with residential space, steel dry construction systems and polycarbonate panels with traditional mortar and tiled roofs. Light architecture, in mass and time, almost industrial, facing the timeless serenity of the handcrafted.
This work for Cabañal urban plan has given us the opportunity to experiment and verify the economy in time, resources and budget appropriate for social housing. Apart from this being a solution to this particular project, a new system is proposed, a repeatable example.