The Theodor Herzl Center for culture, art, and content (TEO), a public cultural center designed by A.Lerman Architects, is located in a beachside residential area of Herzliya, an affluent city in the central coast of Israel, at the Northern part of the Tel Aviv District.

The freestanding TEO location opens up a wide panorama toward the west—the horizon over the ocean—thus rupturing the visual and social narrative of walled luxury villas this area of Herzliya is known for.
The complex designed by A.Lerman Architects, show TEO into view as a distinct single-story building, eminently lower than the neighborhood’s enclosed private mansions. The insertion of a fully exposed public cultural center as an event in the surrounding urbanscape was key to the design strategy.

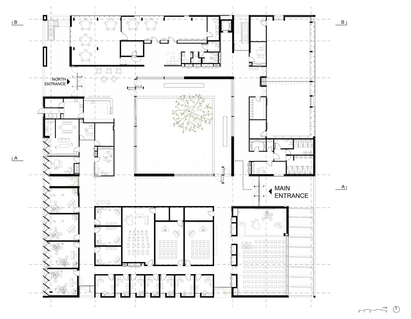
The floor plan is designed within a 50 by 50 m², square plot, developing around an offset central patio surrounded by the various programs.
 

Project description by A.Lerman Architects

TEO provides a unique functional facility to the city’s art-practicing and culture-seeking residents. The plan is designed within a 50 by 50 m² around an offset central patio surrounded by the various programs: a music conservatory, a dance school, art and ceramics studios, a gallery, a senior recreation center, and a cafeteria. An upper partial floor houses a library complemented by a 300 m² open deck.
 
The uniqueness of the design lies in the coherence of a precise geometric module that is strictly enforced throughout; Concrete (on-site casts & precast units), textured glass, and metal flow seamlessly from exterior to interior surfaces. Cutting-edge sealing techniques were used to protect the building from the rain while maintaining its flat roof silhouette and tight proportions.  
 
The patio (292 m²) makes available a space of quiet and welcoming scale. The floated, draining floor provides a pleasing horizontal surface from which a single mature oak tree rises. Direct sunlight from above dynamically projects its presence across the patio’s surfaces, creating ever-changing visual compositions of organic against geometrical form.

Read more
Read less

More information

Label
Architects
Text
A.Lerman Architects Ltd. Principal architect.- Asaf Lerman.
+ + copy Created with Sketch.
- + copy Created with Sketch.
Label
Project team
Text
Project architects.- Danielle Nagila, Nimrod Schenkelbach, Itai Bachor.
+ + copy Created with Sketch.
- + copy Created with Sketch.
Label
Client
Text
Herzliya development company Ltd.
+ + copy Created with Sketch.
- + copy Created with Sketch.
Label
Area
Text
Built area.- 2,500 m².
+ + copy Created with Sketch.
- + copy Created with Sketch.
Label
Dates
Text
Completion year.- September 2019.
+ + copy Created with Sketch.
- + copy Created with Sketch.
Label
Location
Text
Herzliya, Israel.
+ + copy Created with Sketch.
- + copy Created with Sketch.
Label
Photography
+ + copy Created with Sketch.
- + copy Created with Sketch.
A. Lerman Architects is situated in the south of Tel Aviv in a locksmith workshop turned into an architectural studio. The practice was established in 2006 by Asaf Lerman, an Architectural Association graduate. Their portfolio consists entirely of public projects & Asaf is a well-known spokesman for the civic rights in face of the rapidly privatized world everyone lives in.

Their team style working methodology is based on a careful analysis of the site and the mapping of its various contexts. They view the design process as a system with parameters that need to be articulated and prioritized. Once presented clearly, these parameters enable the team to precisely design the effects of architecture over specific layers of the mapped context.

This unique working methodology has led A.Lerman architects, through architectural competitions, to design some of Israel's most renowned public buildings. Central to their portfolio is a series of architectural interventions into iconic buildings in Israel aimed at a re-activation of their public interphase and modern promise.
Read more
Published on: September 16, 2020
Cite:
metalocus, MARÍA ANASTIDAS
"Open to the city. TEO Center for Culture, Art and Content by A.Lerman Architects" METALOCUS. Accessed
<http://www.metalocus.es/en/news/open-city-teo-center-culture-art-and-content-alerman-architects> ISSN 1139-6415
Loading content ...
Loading content ...
Loading content ...
Loading content ...
Loading content ...
Loading content ...
Loading content ...
Loading content ...
Loading content ...
Loading content ...
Loading content ...
Loading content ...
Loading content ...
Loading content ...
Loading content ...
Loading content ...
Loading content ...
Loading content ...
Loading content ...
Loading content ...
Loading content ...
Loading content ...
Loading content ...
Loading content ...
Loading content ...
Loading content ...
Loading content ...
Loading content ...
Loading content ...
Loading content ...
Loading content ...
Loading content ...
Loading content ...
Loading content ...
Loading content ...
Loading content ...
Loading content ...
Loading content ...
Loading content ...
Loading content ...
Loading content ...
Loading content ...
Loading content ...
Loading content ...
Loading content ...
Loading content ...
Loading content ...
Loading content ...
Loading content ...
Loading content ...
Loading content ...
Loading content ...
Loading content ...
Loading content ...