However, the roofs of the building located to the north are built using tiles that rest on wooden pillars supported by a stone foundation. The facades have been the ones that have undergone the most changes during the useful life of the building, for which the new facade is built with the same wood used in the stands, composing a variable grid in contrast to the serene image of the complex.

Beijing Hutong Hotel by Urbensis + NSAAA. Photograph by Hector Peinador.
Project description by Urbensis and NSAAA
The intervention in existing buildings with historical and cultural heritage is undoubtedly a debate very relevant in the 21st century. This debate links to another major concern such as environmental and social sustainability in the construction sector.
Reuse of existing buildings, design thinking about a circular economy of materials, and respect for the culture and identity of each place, are undoubtedly issues that concern us as architects and mark the beginning of our intervention.
The intervention is on a traditional Chinese hutong (housing) built with grey brick walls in Dongcheng District in the city of Beijing. The goal is to turn it into a hotel, combining private areas and areas for activities open to the neighboring community.
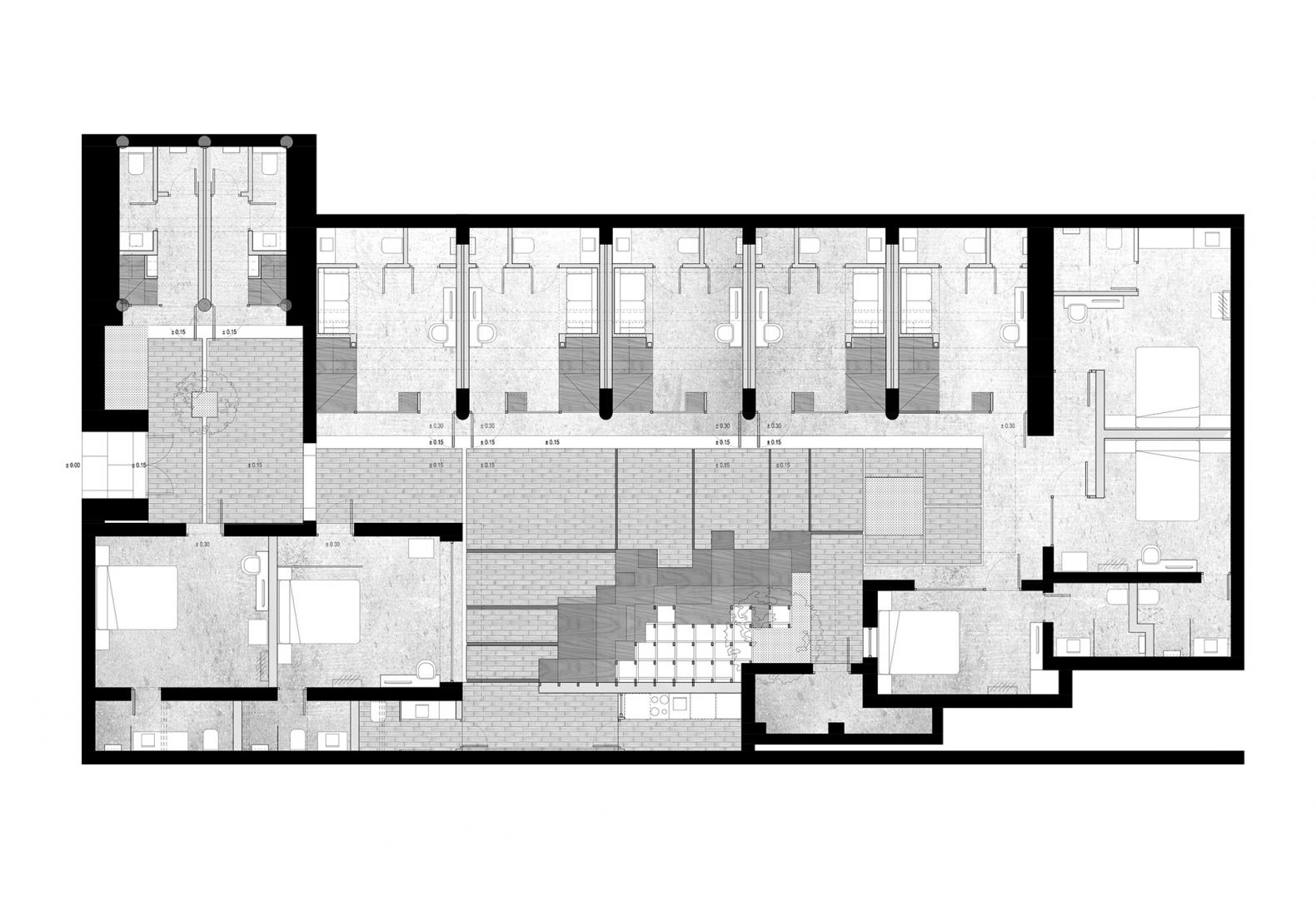
The existing structure is located in the historic center of the city. It consists of a single level in a rectangular floor plan of 350 m², of which 105 m² is used as a patio open to the sky. With a flat topography and building on its four sides, the south-facing courtyard becomes the heart of the building and where community activities occur.

Beijing Hutong Hotel by Urbensis + NSAAA. Photograph by Hector Peinador.
A grandstand in recycled wood allows the audience to watch these community activities. It also serves to ascend to the flat roofs on the south side of the complex where other activities such as the projection of films and documentaries, or random conversations under the sky of the city, happen. The same wood used to build the grandstand extends to build the railings on the flat roofs, which, in some places, become sitting areas. On the other hand, this grandstand structure extends to the patio floor, creating a grid in which the joints are made of wood, and the zones are made of the same grey brick that we can find on the existing facade walls.
The building located on the north side has very well-maintained pitched-tile roofs that rest on wooden pillars that rest on stone bases. Both elements, pitched roofs, and pillars, are sanitized and maintained in their original state. However, the facades that enclose the covered space have undergone multiple changes throughout the life of the building. The new facade is built with the same recycled wood as the grandstand, drawing a variable grid in contrast to the serene image of the complex.

Beijing Hutong Hotel by Urbensis + NSAAA. Photograph by Hector Peinador.
Rooms
Inside, the space is divided into 12 rooms, 7 are configured with a mezzanine level, and, 5 are organized on a single level. In all of them, the exterior brick flooring has its continuity as polished concrete.
The rooms with mezzanines coincide with the buildings with pitched-tile roofs. In these rooms, in combination with the walls in soft tones and the flooring in grey, the wooden beam structure that supports the roof is also painted grey. In contrast, the structure that configures the toilet area and the bedroom area on the upper level is designed as if it were a wooden cabinet with space for seating, shelves, and counterbalanced stairs to raise the bed level.
In contrast, single-level rooms coincide with the areas of flat-roofed buildings. These rooms are materially configured in the same way, although their walls are built with bricks as a resonance with the outside.
The intervention covers the entire existing structure, however, its cultural and material essence prevails.
After the intervention, the existing building maintains its original functionality, accommodation, and community, as well as its materiality, brick, and wood.