OMA y su socio londinense Allies and Morrison han terminado la reforma exterior del antiguo Instituto de la Commonwealth en Londres, con la adición de tres bloques de viviendas privadas con los que se ha ayudado a financiar la reforma del edificio protegido para convertirse en la nueva sede del Museo del Diseño
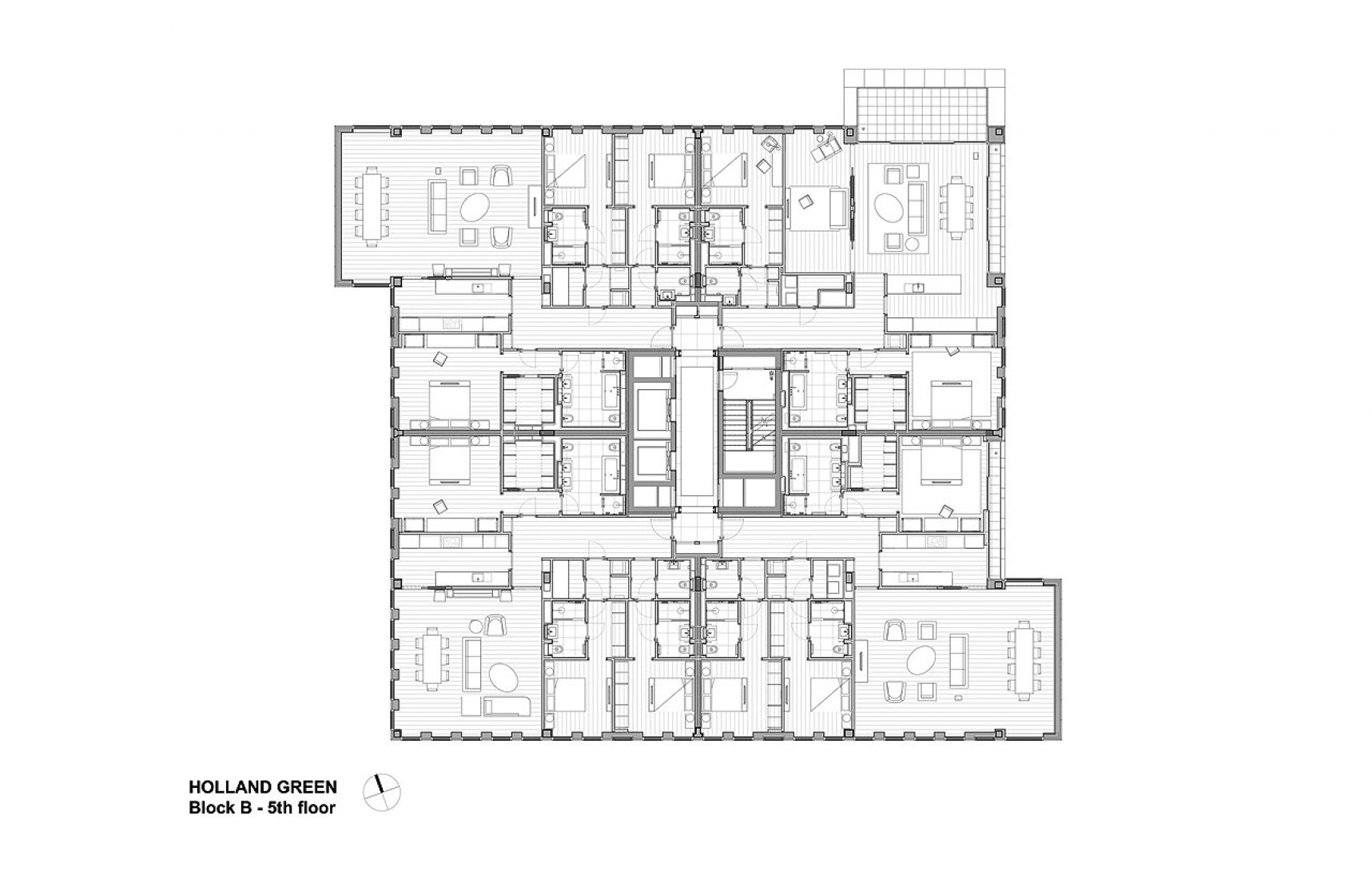
La sede holandesa del estudio de OMA asociada con la firma londinense Allies and Morrison han creado Holland Green, un conjunto de tres bloques de viviendas revestidos de piedra caliza, en torno al antiguo Instituto de la Commonwealth en Holland Park, Kensington, protegido con el Grado II. La venta de 56 pisos 56, de uno a cinco dormitorios, han ayudado a financiar la conversión del edificio de 1960 en la nueva sede del Museo del Diseño de Londres. Tiene previsto reabrir en noviembre, el edificio que contará con un interior diseñado por John Pawson.
 

Descripción del proyecto por OMA

HISTORIA
El Instituto de la Commonwealth de Robert Matthew, Johnson-Marshall y Asociados, terminado en 1962, marca la transición del Imperio Británico de la Commonwealth. Considerado como un importante edificio moderno por el Patrimonio Inglés, fue incluido por primera vez en 1988 y nuevamente en 1990 por su especial interés arquitectónico. En 2002, poco después de haber sufrido una importante reforma por Avery Associates (2000/2001), el edificio fue cerrado al público. En 2006, el gobierno trató de sacar de la lista de edificios protegidos al Instituto de la Commonwealth, pero fracasó, salvandose el edificio de la demolición.

CONCURSO
En marzo de 2008, después de un corto concurso, OMA fue seleccionado de entre una lista de seis arquitectos internacionales, entre los que se incluía a Rafael Moneo, Rafael Viñoly Architects, Eric Parry Associates, Caruso St John, y Make Architects. El concurso trató de explorar la posibilidad de un nuevo uso de la sala principal de exposiciones y la sustitución de la banda de administración (de menor interés *) para que los espacios residenciales ayudasen a financiar la remodelación de la sala principal.

URBANISMO
En la propuesta de OMA, la demolición del ala administración se interpreta como una oportunidad para liberar a la sala principal de exposiciones, de manera que le permita ser apreciada como "una tienda de campaña en el parque", de acuerdo con su intención original. Los edificios residenciales propuestos se sientan como objetos erectos en el paisaje del parque. Orientados para alinearse con la sala de exposiciones, tienen como objetivo integrar la sala en un "conjunto de edificios '.

Dentro de este conjunto, cada edificio se escala proporcionalmente - como las muñecas rusas- para reaccionar a la escala de su entorno inmediato: El edificio principal, se situa detrás de la calle para mantener la condición de la plaza existente, y responde a la escala de los edificios vecinos en la calle Kensington. El mayor de los tres nuevos edificios, escondido detrás en el interior de la parcela, ocultado tanto de Holland Park, como de la calle principal, se corresponde con la altura de los dos edificios adyacentes de los años sesenta del Park Close. El edificio más pequeño, frente al parque, imita la altura de la Parabola.

ARQUITECTURA
Las tranquilas, geometrías ortogonales de los nuevos edificios residenciales suponen un contraste deliberado con las geometrías hiperbólicas dramáticas del techo de la sala de exposiciones. Las fachadas de los edificios nuevos muestran la amplitud de curvatura del techo como un 'papel cuadriculado'.

Cada fachada residencial es un híbrido de los dos tipos de fachada diferentes: una siendo una serie de ventanas verticales idénticas, la otra esencialmente una expresión de la red estructural de los edificios. Esta última ofrece a los apartamentos magníficas vistas y también incorpora sus espacios al aire libre, incluyendo las terrazas de los pisos superiores. Los dos tipos de fachada coexisten en una relación aparentemente accidental. La adición de terrazas da una cierta plasticidad a los volúmenes del edificio, lo que permite (a algunos) apartamentos extenderse fuera del perímetro del edificio, reorientando nuevas vistas desde la fachada.

REHABILITACIÓN CI
La sala principal de exposiciones del Instituto de la Commonwealth será la nueva sede del Museo de diseño, ofreciendo casi tres veces mas de espacio con respecto a la ubicación original en Shad Thames, que ahora estará dedicada a albergar los archivos de Zaha Hadid. Con la excepción de la cubierta y su estructura portante, el edificio ha sido reconstruido casi en su totalidad. Un nuevo sótano se ha instalado debajo de la huella completa, y en las plantas interiores se han reconstruido nuevos niveles para acomodar las necesidades del museo del diseño. Las anticuadas fachadas de la década de 1960, han sido reemplazadas con fachadas eficientes energeticamente, diseñadas para parecerse al original.

La remodelación de la sala de exposiciones de la Commonwealth ha sido financiado con los ingresos a partir de la construcción de viviendas, hasta el punto que al Museo del Diseño se le ha ofrecido un edificio a propósito para él, como si fuera nuevo, sin la obligación de pagar el alquiler.

PAISAJISMO
Ideado como una composición de edificios exentos en un entorno verde, el diseño del paisaje es de importancia primordial. Su carácter romántico pretende contrastar con las geometrías angulares de los edificios, dotando a la arquitectura moderna de una ambigüedad deliberada. Los vehículos (en la medida de lo posible) están prohibidos en el sitio, dejando la posibilidad de un paisaje con transiciones casi perfectas entre el duro edificio y el suave-paisaje.

Por debajo, hay un sótano continuo, conectando los tres edificios de viviendas y el museo del diseño en un mismo nivel de servicio. El aparcamiento y el espacio de almacenamiento para las residencias con acceso privado a cada bloque de viviendas, junto con el acceso al servicio del Museo del Diseño. Este sótano también cuenta con una serie de instalaciones colectivas para los residentes, como una piscina, un cine y un gimnasiobalneario iluminado cenitalmente.
Leer más
Contraer

Más información

Label
Arquitectos
Text
OMA, Allies & Morrison
+ + copy Created with Sketch.
- + copy Created with Sketch.
Label
Equipo de OMA
Text
Socio encargado de OMA.- Reinier de Graaf
Director de proyecto de OMA.- Carol Patterson
Gestores de proyecto OMA.- Mario Rodriguez, Isabel Silva, Fenna Wagenaar, Mitesh Dixit, Richard Hollington III, Beth Hughes
+ + copy Created with Sketch.
- + copy Created with Sketch.
Label
Equipo de Allies and Morrison
Text
Socios de Allies and Morrison.- Simon Fraser, Robert Maxwell

Director Allies and Morrison.- Neil Shaughnessy
Directores asociados Allies and Morrison.- Joel Davenport, Heidi Shah
Asociados Allies and Morrison.- Sean Joyce, Johanna Coste-Buscayret

Equipo Allies and Morrison.- Dinka Beglerbegovic, Fabiana Paluszny, Stuart Thomson
+ + copy Created with Sketch.
- + copy Created with Sketch.
Label
Ingeniero estructural
Text
Arup Structures
+ + copy Created with Sketch.
- + copy Created with Sketch.
Label
Equipo de instalaciones
Text
Arup Services
+ + copy Created with Sketch.
- + copy Created with Sketch.
Label
Acústica
Text
Arup Acoustic
+ + copy Created with Sketch.
- + copy Created with Sketch.
Label
Fachadas
Text
Arup Facades / FMDC

+ + copy Created with Sketch.
- + copy Created with Sketch.
Label
Aparejador
Text
AECOM
+ + copy Created with Sketch.
- + copy Created with Sketch.
Label
Paisajismo
Text
West 8
+ + copy Created with Sketch.
- + copy Created with Sketch.
Label
Diseño Interior
Text
CZL
+ + copy Created with Sketch.
- + copy Created with Sketch.
Label
Diseño de iluminación
Text
R.A.L.C
+ + copy Created with Sketch.
- + copy Created with Sketch.
Label
Año de proyecto
Text
2016
+ + copy Created with Sketch.
- + copy Created with Sketch.
Label
Superficie
Text
30.007,68.0 m²
+ + copy Created with Sketch.
- + copy Created with Sketch.

Office for Metropolitan Architecture (OMA) es un estudio internacional que trabaja dentro de los límites tradicionales de la arquitectura y el urbanismo, complementado con AMO, un estudio de investigación y diseño, que aplica el pensamiento arquitectónico en diferentes áreas. 

OMA está dirigida por ocho socios: Rem Koolhaas, Reinier de Graaf, Ellen van Loon, Shohei Shigematsu, Iyad Alsaka, Chris van Duijn, Jason Long y el socio gerente y arquitecto David Gianotten, y tiene oficinas en Róterdam, Nueva York y Hong Kong. , Doha y Australia. Los edificios diseñados por OMA actualmente en construcción son la renovación de Kaufhaus des Westens (KaDeWe) en Berlín, The Factory en Manchester, Hangzhou Prism, CMG Times Center en Shenzhen y Simone Veil Bridge en Burdeos.

Los proyectos completados de OMA incluyen el Puente Simone Veil en Burdeos (2024), LANTERN en Detroit (2024), Mangalem 21 en Tirana (2023), Aviva Studios – Factory International en Manchester (2023), Apollolaan 171 en Ámsterdam (2023), Buffalo AKG Art Museum en Buffalo (2023), Toranomon Hills Station Tower en Tokio (2023), el Centro de Artes Escénicas de Taipei (2022), el Pabellón Audrey Irmas en Los Ángeles (2020), Norra Tornen en Estocolmo (2020), el Campus Axel Springer en Berlín (2020), el Centro de Convenciones y Exposiciones MEETT Toulouse (2020), Galleria en Gwanggyo (2020), WA Museum Boola Bardip (2020), nhow RAI Hotel en Ámsterdam (2020), un nuevo edificio para Brighton College (2020) y Potato Head Studios en Bali (2020). Los edificios anteriores incluyen Fondazione Prada en Milán (2018), Museo de Arte Contemporáneo Garage en Moscú (2015), De Rotterdam (2013), Sede de CCTV en Beijing (2012), Casa da Música en Oporto (2005) y la Biblioteca Central de Seattle (2004).

AMO a menudo trabaja en paralelo con los clientes de OMA para fertilizar la arquitectura con inteligencia de esta variedad de disciplinas. Este es el caso de Prada: la investigación de AMO sobre identidad, tecnología en la tienda y nuevas posibilidades de producción de contenido en la moda ayudó a generar los diseños arquitectónicos de OMA para las nuevas tiendas del epicentro de Prada en Nueva York y Los Ángeles. En 2004, la Unión Europea encargó a AMO que estudiara su comunicación visual y diseñó una bandera de "código de barras" de colores, que combinaba las banderas de todos los estados miembros, que se utilizó durante la presidencia austriaca de la UE. 

AMO ha trabajado con Universal Studios, el aeropuerto Schiphol de Ámsterdam, Heineken, Ikea, Condé Nast, la Universidad de Harvard y el Hermitage. Ha producido Countryside: The Future, una investigación expuesta en el Museo Solomon R. Guggenheim de Nueva York; exposiciones en la Bienal de Arquitectura de Venecia, incluyendo Public Works (2012), Cronocaos (2010) y The Gulf (2006); y para Fondazione Prada, incluyendo When Attitudes Become Form (2012) y Serial and Portable Classics (2015). AMO, con la Universidad de Harvard, fue responsable de la investigación y curaduría de la 14ª Bienal de Arquitectura de Venecia y su publicación Elements. Otros proyectos destacados son Roadmap 2050, un plan para una red de energía renovable en toda Europa; Project Japan, un libro de 720 páginas sobre el movimiento arquitectónico Metabolism (Taschen, 2010); y el programa educativo del Instituto Strelka en Moscú.

Leer más

Allies and Morrison es un estudio de arquitectura y urbanismo con sede en Londres. Trabajan desde nuestros propios estudios en el 85 Southwark Street, edificio que fue premiado como Edificio del Año en 2004 por el RIBA Londres.

Han terminado proyectos en todo el Reino Unido y en el extranjero, y actualmente están trabajando en proyectos en el Medio Oriente y en Norteamérica.

El trabajo de la oficina abarca desde la arquitectura, el diseño de interiores y la conservación hasta el urbanismo, la asesoría e investigación.

39 de sus proyectos terminados han sido galardonados con el Premio RIBA y han sido dos veces seleccionados para el Premio Stirling - por la revitalización del Royal Festival Hall en 2008 y por el New Court Rothschilds Bank en colaboración con OMA en 2012.

En 2015, recibieron el premio AJ120 Practice of the Year.

Leer más
Publicado en: 12 de Mayo de 2016
Cita:
metalocus, JOSÉ JUAN BARBA
"OMA y Allies & Morrison terminan las viviendas y entorno del Instituto de la Commonwealth" METALOCUS. Accedido el
<http://www.metalocus.es/es/noticias/oma-y-allies-morrison-terminan-las-viviendas-y-entorno-del-instituto-de-la-commonwealth> ISSN 1139-6415
Loading content ...
Loading content ...
Loading content ...
Loading content ...
Loading content ...
Loading content ...
Loading content ...
Loading content ...
Loading content ...
Loading content ...
Loading content ...
Loading content ...
Loading content ...
Loading content ...
Loading content ...
Loading content ...
Loading content ...
Loading content ...
Loading content ...
Loading content ...
Loading content ...
Loading content ...
Loading content ...
Loading content ...
Loading content ...
Loading content ...
Loading content ...
Loading content ...
Loading content ...
Loading content ...
Loading content ...
Loading content ...
Loading content ...
Loading content ...
Loading content ...
Loading content ...
Loading content ...
Loading content ...
Loading content ...
Loading content ...
Loading content ...
Loading content ...
Loading content ...
Loading content ...
Loading content ...
Loading content ...
Loading content ...
Loading content ...
Loading content ...
Loading content ...
Loading content ...
Loading content ...
Loading content ...
Loading content ...